[装修攻略] 焦点真实案例 | 小户型空间的终极开发,如何把两房变四房
10/11/2019 17:29
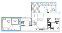
小马和丈夫是在北京打拼的小两口,随着宝宝的诞生,爷爷奶奶也来帮忙带孩子,家中热闹却也有些混乱。新房终于可以收房,小马希望能让家里每个人的需求都得到充分的满足。 家中目前五口人: ...
>> 查看全文
[装修攻略] 北欧风格的别墅居家设计,让人无法拒绝
10/11/2019 11:32
别墅设计以北欧风为主,搭配了一些比较稳重的软装、家具,让这套房子在小清新中又透露出一些典雅、大气的感觉,这样子的混搭超级赞。 别墅北欧风客厅装饰效果图 北欧客厅在布局...
>> 查看全文
[装修攻略] 40平方简约风微型迷你小户型,这样设计两房两厅超宽敞!
10/11/2019 11:31
设计风格:简约风 屋龄状况:新房(5年以下) 空间大小:40平方 空间格局:两房 主要建材:金属漆、仿石纹板、人造石、黑玻、黑镜 房屋类型:楼中楼 ...
>> 查看全文
[装修攻略] 别以讹传讹!专家告诉你,秋冬季节装修竟有这5大好处
10/11/2019 09:55
装修房子可以说是我们人生当中的大事情,如今大部分的新房子都是新房,交房的时间是不确定的,有时候我们拿到房子就已经步入了秋冬季节,这个时候有很多业主听说并不太适合装修,那么, 秋冬季节真的不适合装修...
>> 查看全文
[装修攻略] 耍个小聪明,把装修多余的瓷砖用在这8处,媳妇直点赞
10/11/2019 09:55
通常,具有装修经验的人都知道,每次购买装修材料时,都会剩下一点点。很多人会把剩下的装修材料扔掉,或者退回厂家,但实际上,它们很有用!例如,瓷砖经常用于家庭装修,装修后,会有一些剩余的瓷砖。遗憾的是...
>> 查看全文





