[家居资讯] 厨房木地板空间 用艺术装点生活
05/13/2015 09:51
生活里从来不缺乏艺术,缺少的是发现艺术的眼睛。将生活与艺术融合的家居装修,才是现代人高尚生活品位的极致追求。今天地板装修栏目就带来了几款品位不俗的艺术厨房装修案例,让我们一起来品评这些让生活富有诗情...
>> 查看全文
[家居资讯] 家具市场迎“质检”风潮 诸多行业问题被揭露
05/13/2015 09:51
近段时间,关于家具质检结果的新闻见诸于各报端,家具行业已然掀起了一股“质检”风潮。通过对各类质检情况的综合整理发现,我国家具市场还存在诸多问题,例如,家具整体合格率低、儿童家具不合格率高、高端木质家...
>> 查看全文
[家居资讯] 板川爵仕 当厨房与欧式风范完美邂逅
05/13/2015 09:47
【中华橱柜网】板川集成灶新品爵仕系列虽尚未上市,但是已经在意大利米兰世博会的镁光灯下抢尽了风头。在精彩演绎世博厨房的同时,板川集成灶爵仕系列带给世界人民的无烟享受,正在由米兰世博席卷而至,演变成为全...
>> 查看全文
[家居资讯] 49平米田园风清凉一居室
05/13/2015 09:46
这间公寓位于瑞典哥德堡,漂亮的硬木地板,异形装饰线条,深窗龛和粉刷过的天花板。但是真正让这个49平方米小家吸引人的地方是其丰富的色彩,绿,蓝,橙,黄,绿,在每个方向,你都不可避免地被惊艳到。...
>> 查看全文
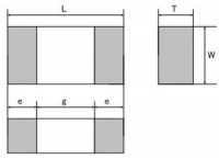
[家居资讯] 性能高20% 村田力推新陶瓷ESD防护器件
05/13/2015 09:45
日前,全球领先的电子元器件制造商村田制作所(以下简称村田)推出了其最新研发的陶瓷ESD防护器件。该产品在性能上比上一代产品提高了20%,大大减少了静电带来的损害。 村田的陶瓷ESD防护...
>> 查看全文





