[家居资讯] 乡下的独栋房子这样设计 绝对是全村最漂亮的
03/09/2020 07:07
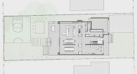
这个房子位于多伦多,是一幢1950年的建筑,由加拿大建筑事务所StudioAC翻新设计,现住着一个五口之家。 房子共两层,下层是起居室,上层是休息区。 ▲一楼平面图 ▲二楼平...
>> 查看全文
03/09/2020 06:16
杨亚峰(设计师)主要作品中海国际社区 中梁天御 雅戈尔太阳城 蝴蝶湾 栖霞栖庭 路劲尚澜湾 从业年龄5年毕业院校中南大学工作经历2008年至今所获奖项 现任职于北京业之峰装饰苏州分公司峰...
>> 查看全文
03/09/2020 06:15
朱丽萍(设计师)主要作品主要作品:鲁能领秀城 山水泉城 福泰新都城 现代逸城 逸城山色 名士豪庭 山水庭院 泉景天沅 军区司令部 凯旋花园 华润中央公园 中铁国际城 中铁汇苑 名泉春晓 ...
>> 查看全文
03/09/2020 06:13
朱丽萍(设计师)主要作品主要作品:鲁能领秀城 山水泉城 福泰新都城 现代逸城 逸城山色 名士豪庭 山水庭院 泉景天沅 军区司令部 凯旋花园 华润中央公园 中铁国际城 中铁汇苑 名泉春晓 ...
>> 查看全文
03/09/2020 06:12
王爱丽(高级设计师)主要作品玫瑰园、上京新航线、水晶城、大西洋新城、亦庄别墅、领秀硅谷联排别墅、倚林佳园、天鹅湾、华悦国际公寓、水晶城、望京西苑、倚林家园、纳帕澜郡、北京香颂、汇园公寓、嘉铭桐城、和...
>> 查看全文





