10/09/2021 18:20
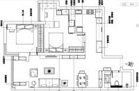
年龄均在30岁左右的小夫妻,喜欢追求新鲜事物,热爱收集盲盒和一切可可爱爱的毛绒玩具。 (文末有福利) 如何完成人生中的第一次装修体验,将104平的老房子,改造成心目中的“理想家”? 他们...
>> 查看全文
[家居资讯] 海尔智家转型效果出来了:国庆增幅、份额双第1
10/09/2021 18:18
又到了“金九银十”的家装季,婚房装修、旧房重装等用户需求集中爆发。很多品牌都加大折扣、准备超值礼品来抢夺客户,但这些方式并不能满足用户高品质生活需求。而一向以场景和生态为优势的海尔智家,又有怎样的市...
>> 查看全文
[家居资讯] 创新领潮!恒洁闪耀2021中国厨卫产业创新发展峰会
10/09/2021 18:12
10月9日,由中国五金制品协会指导、奥维云网(AVC)主办的“2021中国厨卫产业创新发展峰会”在上海隆重开幕。 作为卫浴行业唯一代表,恒洁集团首席执行官丁威先生应邀在峰会发表题为《以匠...
>> 查看全文
10/09/2021 18:10
据悉,试营业期间的京东×尚品宅配超级家居体验中心在国庆假期交出亮眼成绩:截止10月7日成交金额超1000万!超30%用户选择一站式整装服务,最高客单价达25万。 京东×尚品宅配...
>> 查看全文
10/09/2021 18:09
“收纳的意思是根据使用方便来放置,不使用的东西放起来不是收纳。”——池田惠美 对于大多数喜欢买衣服、爱打扮的女生来说,最大的苦恼可能是家里的衣柜空间不足,总是塞得满满的,平时挑选衣...
>> 查看全文





