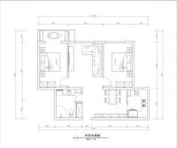
[装修设计] K2玉蘭湾一两居简欧风格装修案例
10/08/2015 12:45
自由的空间感觉。让整体空间使用率更高,墙面、地面、简洁造型、纯洁的质地。 现代简欧风格在处理空间方面一般强调室内空间宽敞、内外通透,在空间设计中追求明亮 在细节部位稍作修饰,让整个...
>> 查看全文
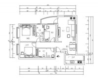
[装修设计] 大运河孔雀城一两居简欧风格装修案例
10/08/2015 12:44
欧式风格强调以华丽的装饰、浓烈的色彩、精美的造型达到雍容华贵的装饰效果。 欧式的居室有的不只是干净,更多的是惬意和浪漫。 简单 实用而又不失大气。 卫生间实景图 户...
>> 查看全文
[装修设计] 绿地国宝一两居简欧风格装修案例
10/08/2015 12:44
欧式风格强调以华丽的装饰、浓烈的色彩、精美的造型达到雍容华贵的装饰效果。 米色的墙纸结合偏深色的地面与室内白的系形成家具对比。通过完美的典线,精益求精的细节处理。 欧式的居室有的不...
>> 查看全文
[装修设计] 海棠公社一两居简欧风格装修案例
10/08/2015 12:44
米色的墙纸结合偏深色的地面与室内白的系形成家具对比。通过完美的典线,精益求精的细节处理,带给家人不尽的舒服触感。 餐厅侧面实景图 由于卧室都比较小,而且晚上也要办公学习,所以把学习...
>> 查看全文
[装修设计] 富力新城一两居简欧风格装修案例
10/08/2015 12:44
,局部用现代简约的石膏板,使整个空间显得干净整洁又不失欧式的尊贵。 餐厅侧面实景图。 欧式的居室有的不只是豪华大气,更多的是惬意和浪漫 设计以白色简欧为主题,加以简单的欧式...
>> 查看全文





